Wszystko, co musisz wiedzieć o projekcie wentylacji mechanicznej z rekuperacją


Projekt wentylacji mechanicznej z rekuperacją – wszystko, co musisz wiedzieć przed budową.
Z naszego doświadczenia wiemy jedno – dobry projekt wentylacji mechanicznej to inwestycja, która się po prostu opłaca. Daje spokój na etapie budowy, oszczędza nerwy przy montażu i pozwala uniknąć nieprzemyślanych kosztów.
W tym artykule opowiemy Ci:
- czym właściwie jest projekt wentylacji z odzyskiem ciepła (rekuperacją)
- co konkretnie otrzymujesz, zamawiając taki projekt u nas
- jak wygląda proces realizacji zamówionego projektu
- dlaczego warto go mieć jeszcze przed rozpoczęciem prac wykończeniowych
- pokażemy na realnym przykładzie, jak to wygląda w praktyce
- omówimy koszty


Dlaczego projekt to podstawa?
Wentylacja z odzyskiem ciepła to system, który działa niezależnie od pogody i gwarantuje:
- świeże i przefiltrowane powietrze w domu przez cały rok
- niższe rachunki za ogrzewanie i klimatyzację
- lepszy komfort życia domowników
- brak wilgoci, alergenów i smogu
- realne oszczędności już na etapie budowy
Ale… tylko wtedy, gdy jest dobrze zaplanowana, skonfigurowana i zamontowana.
Bez projektu często kończy się to:
- kolizjami z konstrukcją budynku
- trasami kanałów “na siłę”
- generowaniem hałasu lub przeciągów
- w skrajnych przypadkach – koniecznością przebudowy części instalacji
U nas projekt to nie tylko „rysunek”, ale kompletna dokumentacja, która powstaje z myślą o Twoim konkretnym budynku i stylu życia.
Co zawiera nasz projekt wentylacji?
Zamawiając projekt wentylacji mechanicznej z rekuperacją, otrzymujesz:
✅ indywidualnie przygotowany projekt dopasowany do Twojego budynku
✅ bilans powietrza – obliczenia dla każdego pomieszczenia
✅ schematy instalacji z rozmieszczeniem anemostatów, skrzynek, rekuperatora i tras kanałów
✅ dobór urządzeń – możemy dopasować się do Twoich preferencji lub zaproponować sprawdzone centrale z naszej oferty
✅ pełną wycenę materiałów – poznajesz rzeczywisty koszt inwestycji
✅ dokumentację z gotowym projektem i opisem technicznym
✅ wsparcie techniczne na etapie montażu i użytkowania systemu

Jak wygląda współpraca krok po kroku?
1. Zamawiasz projekt
Przez nasz sklep internetowy – kliknij tutaj
2. Wysyłamy formularz
Pytamy o szczegóły – rzuty budynku, wysokości i przeznaczenie pomieszczeń, sufit podwieszany, Twoje oczekiwania i założenia.
3. Przygotowujemy projekt
Na podstawie dokumentacji i rozmów – przystępujemy do projektowania systemu.
4. Uzgadniamy szczegóły
Jeśli trzeba – konsultujemy zmiany.
5. Wysyłamy gotowy projekt + wycenę
Otrzymujesz kompletny plik PDF z rysunkami, bilansem powietrza, zestawieniem materiałów i wyceną.


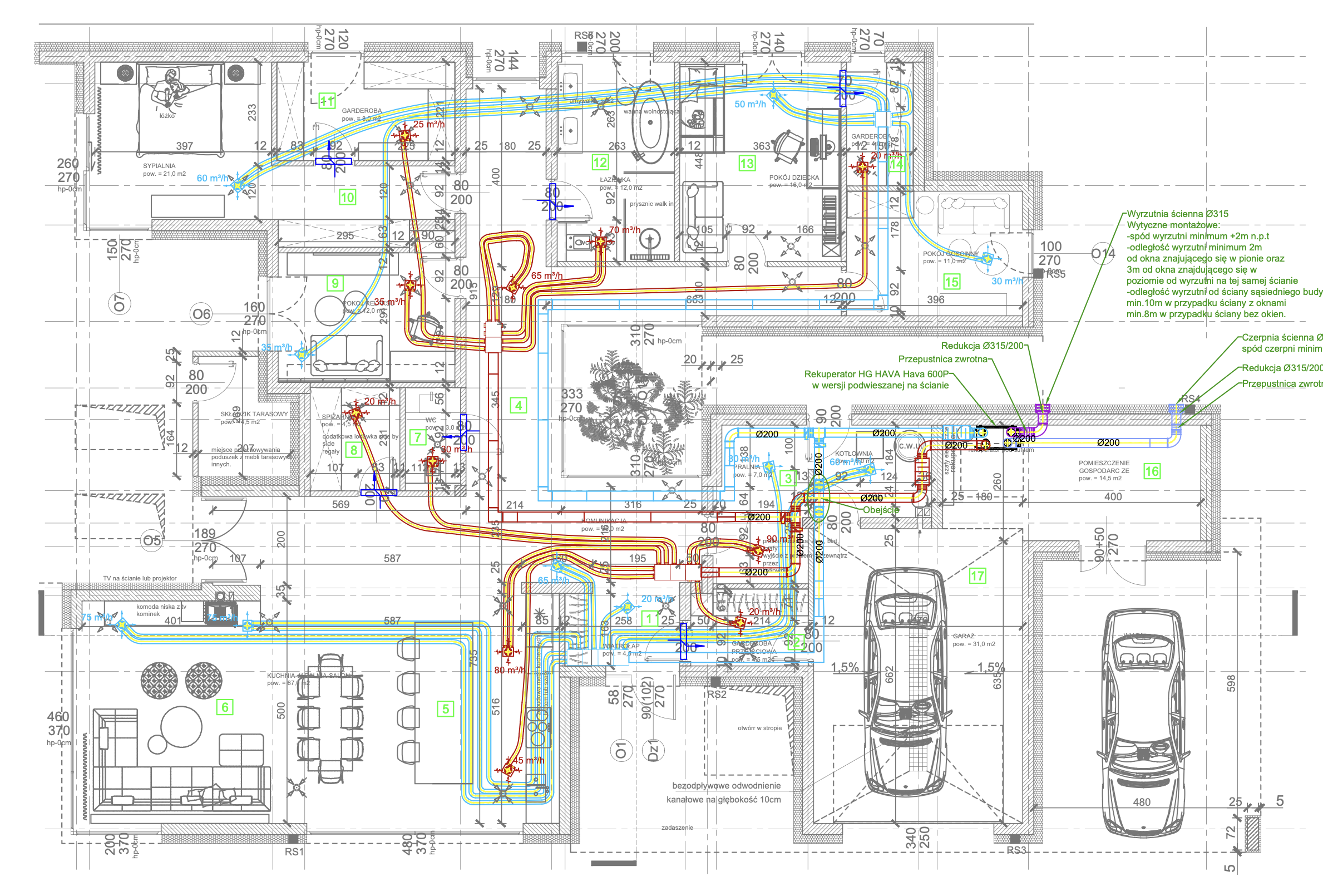
Przykład z praktyki – dom parterowy z systemem hybrydowym
Niedawno projektowaliśmy system dla nowego domu parterowego. Klientowi zależało na możliwie niskiej wysokości zabudowy i cichej pracy systemu.
Zastosowaliśmy hybrydowe połączenie:
- kanałów płaskich prostokątnych 220x80 – idealne do prowadzenia instalacji w wąskich przestrzeniach połączonych z centralą za pomocą dyfuzora łączącego kanał prostokątny z kanałem fi200
- Kanały flex fi90 antygrzybiczne i antybakteryjne połączone
- z modułowym systemem Ø90 OVA i modułem bocznym umożliwiającym poziome przyłączenie do skrzynek rozdzielczych z kanałów prostokątnych
System uzupełniły:
- tłumiki akustyczne fi 200 dla redukcji hałasu i drgań
- skrzynki rozprężne Awenta – szczelne i sprawdzone rozwiązanie
- anemostaty nawiewne Awenta – uniwersalne i estetyczne anemostaty kierunkowe
- rekuperator HG Hava 600 V – niezawodna i cicha centrala naszej produkcji
- czerpnie i wyrzutnie Awenta – estetyczne rozwiązanie z okapnikiem i rewizją
Efekt?
Zgrana, cicha instalacja, która idealnie zmieściła się w suficie podwieszanym 20 cm – bez konfliktów z konstrukcją i bez zbędnych kosztów.


Bez projektu? Ryzykujesz
W tej samej inwestycji wystarczyło, że na etapie budowy pojawiły się:
- nieplanowany komin
- dodatkowy podciąg konstrukcyjny
- zmiana funkcji pomieszczenia
Bez projektu system byłby:
- droższy
- bardziej skomplikowany w montażu
- mniej efektywny
A u nas? Nasi technicy są w stałym kontakcie z działem projektowym, więc poprawki wprowadzamy od razu i dopasowujemy się do sytuacji zastanej na budowie.
Ile to kosztuje?
Chcesz najpierw sprawdzić, ile może kosztować cała instalacja?
Chcesz mieć kompletny projekt + wycenę?
Potrzebujesz projektu z pieczątką projektanta?
Masz pytania? Chętnie pomożemy!
Każdy dom jest inny – i każdy projekt to nowa historia.
Jeśli chcesz skonsultować swój przypadek – odezwij się do nas. Wspólnie zaplanujemy najlepsze rozwiązanie dla Twojego domu.
Polecane

Tłumik Akustyczny Kanałowy OCYNK Wentylacja Rekuperacja fi200 mm dł. 600 mm
