 
                            Rekuperator HAVA REKU 2000P
CENTRALA NAWIEWNO – WYWIEWNA Z ODZYSKIEM CIEPŁA dla budynków użyteczności publicznej
Rekuperator jest urządzeniem wentylacyjnym z odzyskiem ciepła przeznaczonym do wentylacji budynkach przeznaczonych na stały pobyt ludzi (np. biura, budynki użyteczności publicznej).
Konstrukcja wymiennika przeciwprądowego umożliwia pozyskanie energii cieplnej z powietrza wywiewnego do ogrzania powietrza nawiewanego z zewnątrz. Centralę wentylacyjną wyposażono w energooszczędne wentylatory EC, wymiennik przeciwprądowy, filtry, sterowanie oraz nagrzewnicę wtórną.
Rekuperator przeznaczony jest do pracy w pomieszczeniu technicznym wewnątrz budynku (np. poddasze, strych, piwnica), nieprzeznaczonym do stałego przebywania ludzi.
Temperatura w pomieszczeniu nie powinna spadać poniżej 7 C w ciągu całego roku. Urządzenie nie może być posadowione w pomieszczeniu o wysokiej wilgotności względnej powietrza. Zaleca się umiejscowienie urządzenia w pomieszczeniu ogrzewanym. W pomieszczeniu należy zapewnić możliwość przyłączenia urządzenia do jednofazowej instalacji elektrycznej 230V 50 Hz, instalacji kanalizacyjnej celem odprowadzenia kondensatu oraz zapewnić swobodny dostęp do urządzenia celem zdemontowania płyty rewizyjnej i wymiany filtrów.
Z nagrzanego powietrza, w którym znajdują się zanieczyszczenia oraz dwutlenek węgla, ciepło jest częściowo odzyskiwane i wykorzystywane do ponownego ogrzewania pomieszczenia.
Jednocześnie napływa do niego świeży strumień z zewnątrz.
Taki obieg pozwala utrzymać wysoką jakość powietrza w pomieszczeniach i jednocześnie redukuje utratę ciepła, co przekłada się na niższe koszty ogrzewania.
Ponadto powietrze zostaje oczyszczone z alergenów oraz kurzu, dzięki czemu nie ma potrzeby wietrzenia pomieszczeń.
To duża zaleta w okresie zimowym i letnim, w którym często panuje duże stężenie smogu, a otwieranie okien grozi przedostaniem się zanieczyszczeń do wewnątrz.
 
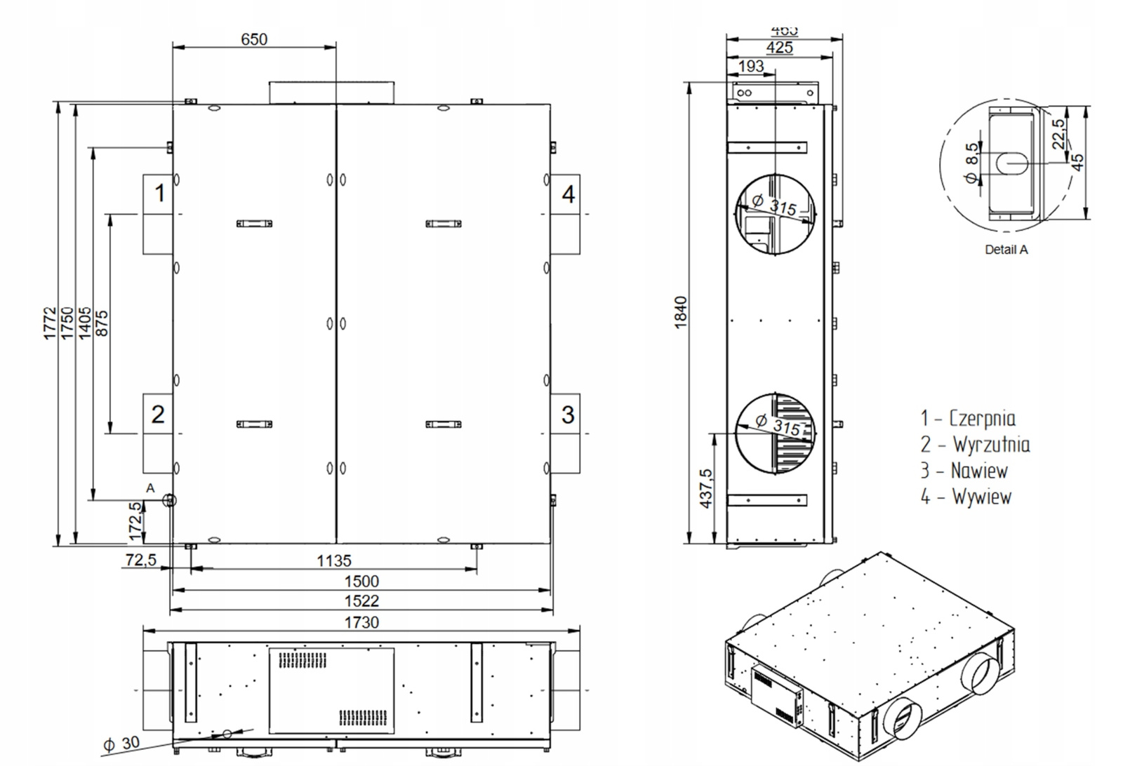
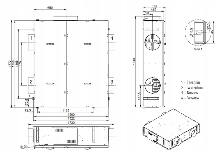
                            WYMIARY:
 
                            Obudowa
Obudowa rekuperatora składa się z obudowy zewnętrznej i z wewnętrznej z blachy ocynkowanej. Pomiędzy nimi znajduje się warstwa izolacji, skutecznie separująca wnętrze centrali od parametrów powietrza w pomieszczeniu.
Wymiennik
We wnętrzu centrali znajduje się wymiennik ciepła wysokiej jakości (odzysk ciepła do 95%). Urządzenie na czerpni i wywiewie zabezpieczono filtrami, aby uniknąć zabrudzenia wewnątrz. Po stronie wywiewu zamontowano również tacę ociekową na skropliny wraz z króćcem odpływowym.
Wentylatory
Centralę wyposażono w energooszczędne wentylatory z silnikami komutowanymi elektronicznie (EC) o wysokiej sprawności. Cały rekuperator, a w tym wymiennik i wentylatory, spełniają wymogi dyrektywy Ekoprojekt na rok 2018 (ErP 2018).
By pass obejście odzysku ciepła
Urządzenie zawiera szczelne, 100% obejście odzysku ciepła. Oznacza to pełne obejście wymiennika na nawiewie zamknięcie kanału powietrza przechodzącego przez wymiennik w momencie otwarcia by passu. Klapa by passu jest napędzana siłownikiem obrotowym.
 
                            Układ zasilania i sterowania
Układ sterujący wraz z przyłączem elektrycznym zabudowano w bocznej części centrali, na zewnątrz urządzenia. Połączenie z panelem operatorskim realizowane jest poprzez przewód sterujący. Układ sterujący umożliwia wyregulowanie pracy urządzenia zgodnie z zapotrzebowaniem użytkowników.
Układ obsługuje również dodatkowe urządzenia zewnętrzne, np. przepustnicę gruntowego wymiennika ciepła (GWC), dodatkową nagrzewnicę lub chłodnicę powietrza oraz pozwala na współpracę z systemem zarządzania budynkiem (ang. BMS). Sterowanie urządzeniem może odbywać się również poprzez aplikację mobilną bądź poprzez Internet (opcjonalnie).
 
                            Urządzenie posiada 4 wbudowane króćce, które służą do podłączenia kanałów wentylacyjnych. Takie rozwiązanie zapewnia płynny przepływ powietrza i optymalną wydajność instalacji. Do urządzenia są podłączone 4 kanały:
- 1. Czerpnia przez który do rekuperatora doprowadzane jest świeże powietrze z zewnątrz
- 2. Wyrzutnia przez który następuje odprowadzenie powietrza na zewnątrz budynku z rekuperatora
- 3. Nawiew do pomieszczeń przez ten kanał nagrzane i oczyszczone powietrze jest wprowadzane z rekuperatora do wewnątrz pomieszczenia
- 4. Wyciąg z pomieszczeń ,,zużyte” powietrze z wysoką zawartością dwutlenku węgla i niskim stężeniem tlenu jest odprowadzane z pomieszczeń do rekuperatora
 
                            Sterowanie
Centrale wyposażone w wielofunkcyjna automatykę (polski producent) oraz nowoczesny i Intuicyjny panel z wyświetlaczem dotykowym
Wybrane właściwości sterownika:
- regulacja temperatury
- sterowanie ogrzewaniem,
- sterowanie wentylacją,
- tygodniowy harmonogram pracy,
- oddzielny harmonogram nadni świąteczne,
- wyświetlanie przebiegów temperatury pokojowej.
- Tryby pracy: kominek, party, wietrzenie
- Obsługa w aplikacji mobilnej
 
                            Wersja podstawowa zawiera:
- wentylatory EC
- wymiennik przeciwprądowy
- sterownik z kolorowym wyświetlaczem dotykowym MIDI Plum (m. in. tryb kominek, party)
- filtry nawiew G4/wywiew G4
- automatyczny by-pass
- wbudowana nagrzewnica wtórna 2,2 kW
- moduł net ethernet
Opcje wyposażenia - dodatkowe (za opłatą):
- Czujnik wilgotości pomieszczeniowy
- Czujnik CO2
- Chłodnico/nagrzewnica kanałowa
MONTAŻ
Montaż podwieszany pod sufitem, zapewniający oszczędność na przestrzeni.
UWAGA!
Wykonujemy również profesjonalne projekty wentylacji mechanicznej - rekuperacji.
Tylko precyzyjny i profesjonalny dobór niezbędnych elementów wentylacyjnych jest w stanie zapewnić pełną satysfakcję z wydajności oraz cichej pracy systemu.
Zapraszamy również instalatorów oraz deweloperów do stałej współpracy.



















