REKUPERATOR
HAVA TEMIZ 300
wersja leżąca
Z NAGRZEWNICĄ WSTĘPNĄ 1 kW NE-WS
(POZIOME USYTUOWANIE KRÓĆCÓW / FI 160)

Rekuperator HAVA TEMIZ 300 w wersji leżącej to nowoczesne, kompaktowe urządzenie, które znacząco redukuje straty ciepła w wentylowanych pomieszczeniach. Jego działanie opiera się na odzyskiwaniu energii cieplnej z powietrza usuwanego z budynku i przekazywaniu jej do świeżego powietrza nawiewanego – gwarantując optymalny komfort termiczny przy jednoczesnej oszczędności energii.
Urządzenie dedykowane jest do wentylacji:
- Niewielkich domów i mieszkań,
- Biur oraz budynków użyteczności publicznej (szkoły, przychodnie, lokale usługowe).
Dzięki zaawansowanej konstrukcji i wysokiej sprawności, rekuperator w pełni spełnia wymagania klasy efektywności energetycznej A zgodnie z Dyrektywą Unijną 2009/125/EC oraz rozporządzeniem Komisji UE nr 1254/2014.
TEN MODEL POSIADA FABRYCZNIE ZAINSTALOWANĄ NAGRZEWNICĘ WSTĘPNĄ 1 kW NE-WS, która efektywnie chroni wymiennik ciepła przed zamarzaniem w niskich temperaturach, zapewniając ciągłą i nieprzerwaną pracę centrali nawet w trakcie silnych mrozów.
KLUCZOWE CECHY
- Energooszczędne wentylatory EC: Płynna regulacja wydajności, minimalizująca zużycie energii.
- Wymiennik przeciwprądowy: Sprawność odzysku ciepła do 92% (tworzywo sztuczne).
- Automatyczny by-pass: Inteligentne obejście wymiennika w celu optymalizacji temperatury.
- Filtry klasy G4 i M5: Zapewniają wysoką czystość powietrza; wymiana beznarzędziowa, sygnalizowana przez sterownik.
- Wielofunkcyjna automatyka (polski producent): Intuicyjny panel dotykowy z wyświetlaczem, harmonogramy tygodniowe i świąteczne, tryby specjalne (kominek, party, wietrzenie), sterowanie smartfonem.
- Możliwość integracji z gruntowym wymiennikiem ciepła (GWC).


KONSTRUKCJA I MONTAŻ
Obudowa:
- Wykonana z blachy ocynkowanej malowanej proszkowo – gwarantuje trwałość i odporność na korozję.
- Izolacja termiczna: Eliminuje mostki cieplne, redukując straty energii.
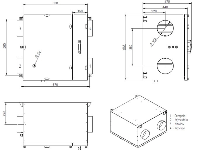
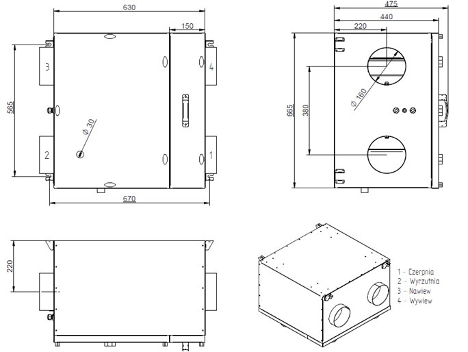
- Króćce przyłączeniowe: Średnica Ø160 mm, wykonane z blachy stalowej ocynkowanej.
- Nóżki poziomujące: Regulowane podpory dla stabilnego posadowienia na podłożu oraz prawidłowego odpływu skroplin.
- Taca ociekowa: Zlokalizowana w dolnej części obudowy, ułatwiająca odprowadzanie kondensatu w pozycji poziomej (dostęp serwisowy z boku).
Montaż:
- Przeznaczony wyłącznie do montażu poziomego (leżącego) na równym podłożu (np. podłoga, platforma).
- Wymagane wypoziomowanie za pomocą nóżek dla prawidłowego odpływu skroplin.
- Konstrukcja zapewnia łatwy dostęp do panelu serwisowego (konserwacja, wymiana filtrów).
- Uwaga: Wersja nie obejmuje uchwytów do podwieszenia – dedykowana dla instalacji naziemnych.
INFORMACJE TECHNICZNE
- Klasa energetyczna: A
- Rodzaj wymiennika ciepła: Przeponowy, przeciwprądowy, tworzywowy
- Sprawność cieplna (max): >92%
- Maksymalne natężenie przepływu powietrza (100 Pa): 300 m³/h
- Maksymalne ciśnienie: 400 Pa
- Napięcie zasilania: 230V 50Hz
- Pobór mocy urządzenia (bez nagrzewnicy): 5-170 W
- Nagrzewnica wstępna / wtórna (opcjonalnie): 0,5 kW on-off
- Klasa filtrów: ISO Coarse (G4) nawiew / wywiew
- Wymiary (wysokość/szerokość/głębokość): 745 x 630 x 475 mm
- Waga urządzenia (netto): 47 kg
- Stopień ochrony: IP 40
- Poziom mocy akustycznej (LWA): 49 dB
- Sterowanie: Aplikacja mobilna, panel dotykowy, harmonogramy tygodniowe i świąteczne, tryby specjalne (kominek, party, wietrzenie), możliwość integracji z GWC


DZIAŁANIE I EFEKTYWNOŚĆ
- Odzysk ciepła: Wymiennik przeciwprądowy wykorzystuje ciepło z powietrza wywiewanego do ogrzania powietrza nawiewanego – redukcja kosztów ogrzewania nawet o 70%.
- Automatyka pogodowa: By-pass i sterownik dopasowują pracę do warunków zewnętrznych, zapobiegając przegrzewaniu.
- Niski pobór energii: Wentylatory EC oraz efektywna izolacja minimalizują zużycie prądu – jednostkowe zużycie energii (JZE): -41 kWh/(m²/rok).
AKCESORIA OPCJONALNE
- Nagrzewnice wstępne/wtórne (0,5 kW),
- Czujniki (temperatury, wilgotności, CO₂),
- Moduł internetowy do zdalnego sterowania,
- Tłumiki akustyczne, skrzynki rozprężne.
GWARANCJA I BEZPIECZEŃSTWO
- 2 lata gwarancji na urządzenie i automatykę.
- Spełnia normy UE dotyczące efektywności, emisji hałasu i bezpieczeństwa.
- Optymalna temperatura pracy: +7°C do +40°C (pomieszczenie techniczne).
DLA PROJEKTANTA
Rekomendacje montażowe:
- Zastosowanie króćców elastycznych oraz tłumików akustycznych dla maksymalnej redukcji hałasu.
- Zapewnienie przestrzeni serwisowej (min. 600 mm przed panelem).
- Podłączenie do instalacji wentylacyjnej z zachowaniem minimalnych promieni gięcia kanałów.






Posiadamy wszystkie elementy systemów wentylacyjnych płaskich oraz okrągłych. Zapraszamy na pozostałe aukcje.




























