Rekuperator podwieszany z nagrzewnicą wstępną 900 m3/h HAVA 900P
CENTRALA NAWIEWNO – WYWIEWNA Z ODZYSKIEM CIEPŁA
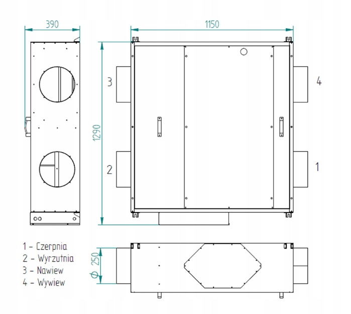
Centrala wentylacyjna HAVA REKU 900P PODWIESZANA z nagrzewnicą wstępną 1,5kw NE-WS (poziome usytuowanie króćców / FI 200)
✔️ Spełnia wymagania programu "Czyste powietrze" ✔️

HAVA 900 P to energooszczędna centrala wentylacyjna stosowana do wymiany powietrza przy jednoczesnym odzysku ciepła.
Urządzenie kontroluje proces cyrkulacji wewnątrz budynku oraz pozwala na dostosowanie jego intensywności do potrzeb użytkowników, zapewniając nieprzerwany dopływ świeżego powietrza do wnętrza budynku, przy jednoczesnym usunięciu powietrza zużytego oraz wilgoci z pomieszczeń.
Dokumentacja Techniczno-Ruchowa typoszeregu kompaktowych central z wymiennikiem przeciwprądowym, stanowi zbiór informacji, pozwalających na zapoznanie z budową oraz właściwym użytkowaniem urządzenia. Przed montażem, rozruchem i eksploatacją urządzenia, należy bezwzględnie zapoznać się z niniejszą instrukcją i ściśle stosować się do zawartych w nim wytycznych i zaleceń.
Rekuperator jest urządzeniem wentylacyjnym z odzyskiem ciepła przeznaczonym do stosowania w wentylacji domów, mieszkań oraz w budynkach przeznaczonych na stały pobyt ludzi (np. biura, budynki użyteczności publicznej). Konstrukcja wymiennika przeciwprądowego umożliwia pozyskanie energii cieplnej z powietrza wywiewnego do ogrzania powietrza nawiewanego z zewnątrz. Centralę wentylacyjną wyposażono w energooszczędne wentylatory EC, wymiennik przeciwprądowy, filtry, sterowanie.
Rekuperator przeznaczony jest do pracy w pomieszczeniu technicznym wewnątrz budynku (np. poddasze, strych, piwnica), nieprzeznaczonym do stałego przebywania ludzi.
Temperatura w pomieszczeniu nie powinna spadać poniżej 7°C w ciągu całego roku. Urządzenie nie może być posadowione w pomieszczeniu o wysokiej wilgotności względnej powietrza. Zaleca się umiejscowienie urządzenia w pomieszczeniu ogrzewanym. W pomieszczeniu należy zapewnić możliwość przyłączenia urządzenia do jednofazowej instalacji elektrycznej 230V 50 Hz, instalacji kanalizacyjnej celem odprowadzenia kondensatu oraz zapewnić swobodny dostęp do urządzenia celem zdemontowania płyty rewizyjnej i wymiany filtrów.

- Obudowa rekuperatora składa się z obudowy zewnętrznej z blachy ocynkowanej. Pomiędzy nimi znajduje się warstwa izolacji, skutecznie separująca wnętrze centrali od parametrów powietrza w pomieszczeniu.
- wentylatory – promieniowo-osiowe z bezpośrednim napędem, elektrokomutowane (EC),
- wysokosprawny wymiennik przeciwprądowy,
- układ by-passu, gwarantujący sprawną pracę w porze letniej, klapa by-passu jest napędzana siłownikiem obrotowym
- filtry powietrza – jednorazowe, wymienne klasy G4, M7,
- układ automatyki - układ sterujący wraz z przyłączem elektrycznym zabudowano w bocznej części centrali, na zewnątrz urządzenia.
Połączenie z panelem operatorskim realizowane jest poprzez przewód sterujący. Układ sterujący umożliwia wyregulowanie pracy urządzenia zgodnie z zapotrzebowaniem użytkowników.
Układ obsługuje również dodatkowe urządzenia zewnętrzne, np. przepustnicę gruntowego wymiennika ciepła (GWC), dodatkową nagrzewnicę lub chłodnicę powietrza oraz pozwala na współpracę z systemem zarządzania budynkiem (ang. BMS). Sterowanie urządzeniem może odbywać się również poprzez aplikację mobilną bądź poprzez Internet (opcjonalnie).

Sterowanie
Centrale wyposażone w wielofunkcyjna automatykę (polski producent) oraz nowoczesny i Intuicyjny panel z wyświetlaczem
Wybrane właściwości sterownika:
- regulacja temperatury
- sterowanie ogrzewaniem,
- sterowanie wentylacją,
- tygodniowy harmonogram pracy,
- oddzielny harmonogram nadni świąteczne,
- wyświetlanie przebiegów temperatury pokojowej.



Mozliwe wykonanie wersji: leżącej, stojącej i podwieszanej.
UWAGA!
Wykonujemy również profesjonalne projekty wentylacji mechanicznej - rekuperacji.
Tylko precyzyjny i profesjonalny dobór niezbędnych elementów wentylacyjnych jest w stanie zapewnić pełną satysfakcję z wydajności oraz cichej pracy systemu.


















