Co to rekuperacja i jak działa? Wszystko, co musisz wiedzieć!
Dowiedz się, co to jest rekuperacja i jak działa. Poznaj zasady, korzyści i koszty nowoczesnej wentylacji z odzyskiem ciepła w domu jednorodzinnym.

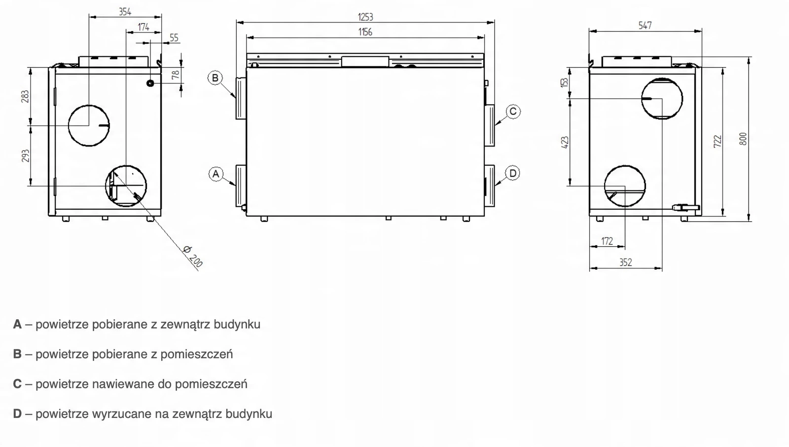
WANAS COMBO 430 H to inteligentna centrala wentylacyjna wisząca, która łączy cztery kluczowe funkcje: wentylację, nawilżanie, chłodzenie oraz ogrzewanie powietrza. Urządzenie o wydajności 430 m³/h dedykowane jest do domów jednorodzinnych oraz obiektów usługowych
Kluczowe parametry techniczne
Wydajność maksymalna: 430 m³/h
Klasa efektywności energetycznej: A+
Zużycie energii: 21-180 W
Moc akustyczna: 34,4 dBA
Spręż dyspozycyjny: 100 Pa
Zasilanie: 230 V / 50 Hz
Moc nagrzewnicy wstępnej: 1000 W
Klasa filtrów: ISO COARSE 75% + ePM10 50%
Kluczowe zalety WANAS COMBO 630 V
Wymiennik o najwyższej sprawności
Nowoczesny wymiennik krzyżowo-przeciwprądowy z trwałego tworzywa gwarantuje maksymalne wykorzystanie energii cieplnej z powietrza wywiewanego. Pionowe umieszczenie wymiennika umożliwia naturalny, grawitacyjny odpływ kondensatu do tacy ociekowej, eliminując potrzebę dodatkowego „przedmuchiwania” i zmniejszając zużycie energii.
Zaawansowane sterowanie Display V2
Dotykowy panel z 5-calowym szkłem cechuje się intuicyjną obsługą i estetycznym designem. Wbudowana komunikacja radiowa pozwala na podłączenie czujników wilgotności MaxiControl oraz czujnika CO2 RCO2 Control, umożliwiając pełną kontrolę nad jakością powietrza i funkcjami takimi jak GWC, nawilżanie, chłodzenie czy grzanie. W standardzie centrala wyposażona jest w bezprzewodowy czujnik wilgotności MaxiControl, który automatycznie steruje pracą nawilżacza i poziomem wilgotności w budynku. Dodatkowo system można rozbudować o czujnik CO₂ Control, który na podstawie stężenia dwutlenku węgla steruje wydajnością rekuperatora i wentylacją strefową.
Nawilżacz ewaporacyjny
Innowacyjny nawilżacz wykorzystuje naturalny proces ewaporacji na specjalnej macie, zwiększając wilgotność powietrza bez ryzyka przesycenia, co poprawia komfort i jakość powietrza.


System XF – precyzyjne balansowanie airflow
System monitoruje i automatycznie dostosowuje pracę wentylatorów nawiewnych i wywiewnych w czasie rzeczywistym dzięki czterem punktom pomiarowym, zapewniając stabilną i efektywną wentylację.
Inteligentny BYPASS
Automatyczny bypass umożliwia naturalne chłodzenie pomieszczeń, omijając wymiennik ciepła, gdy warunki atmosferyczne są sprzyjające. Unikalna funkcja zwiększa wydajność centrali do 100% w momencie otwarcia bypassu dla szybszego komfortu.
SMART HEATER
Nagrzewnica o mocy 1000 W z inteligentną modulacją mocy zapewnia optymalną ochronę wymiennika przy minimalnym zużyciu energii, dopasowując się do aktualnych warunków zewnętrznych.
Protokół MODBUS RTU
Uniwersalny protokół komunikacyjny pozwala na integrację z dowolnymi inteligentnymi systemami zarządzania budynkiem, umożliwiając zdalne sterowanie rekuperatorem.

Możliwości rozbudowy i integracji
Moduł WANAS Mobile Control W-25 Wi-Fi: Zdalne zarządzanie systemem przez aplikację mobilną z dostępem do kluczowych parametrów i powiadomień serwisowych.
Agregat chłodząco-grzewczy: Zwiększa możliwości ogrzewania i chłodzenia poprzez podłączenie nagrzewnico-chłodnic wodnych lub freonowych, optymalizując komfort i oszczędność energii.
Bufor energii: Magazynuje ciepło lub chłód, stabilizując temperaturę i ograniczając koszty eksploatacji.
Inteligentna centrala SINUM: Kompleksowe zarządzanie domem i wentylacją z jednego panelu lub aplikacji.
Bezprzewodowy czujnik CO2Control: Automatycznie reguluje pracę nawilżacza i wentylacji, dbając o zdrowy mikroklimat bez konieczności prowadzenia przewodów.





Dowiedz się, co to jest rekuperacja i jak działa. Poznaj zasady, korzyści i koszty nowoczesnej wentylacji z odzyskiem ciepła w domu jednorodzinnym.